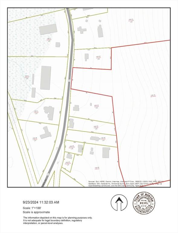
Description
20 Acres on Route 32 in Monson. The Frontage is Zoned General Commercial and has 188 feet of Frontage (and approx 1.7 acres+/-). The backland is Zoned Residential Rural and is 18.3+/- acres of sloping woodland.
School Ratings & Info
Description
20 Acres on Route 32 in Monson. The Frontage is Zoned General Commercial and has 188 feet of Frontage (and approx 1.7 acres+/-). The backland is Zoned Residential Rural and is 18.3+/- acres of sloping woodland.
The property listing data and information set forth herein were provided to MLS Property Information Network, Inc. from third party sources, including sellers, lessors and public records, and were compiled by MLS Property Information Network, Inc. The property listing data and information are for the personal, non commercial use of consumers having a good faith interest in purchasing or leasing listed properties of the type displayed to them and may not be used for any purpose other than to identify prospective properties which such consumers may have a good faith interest in purchasing or leasing. MLS Property Information Network, Inc. and its subscribers disclaim any and all representations and warranties as to the accuracy of the property listing data and information set forth herein. Data last updated 2026-03-15T10:03:49.94.
