Description
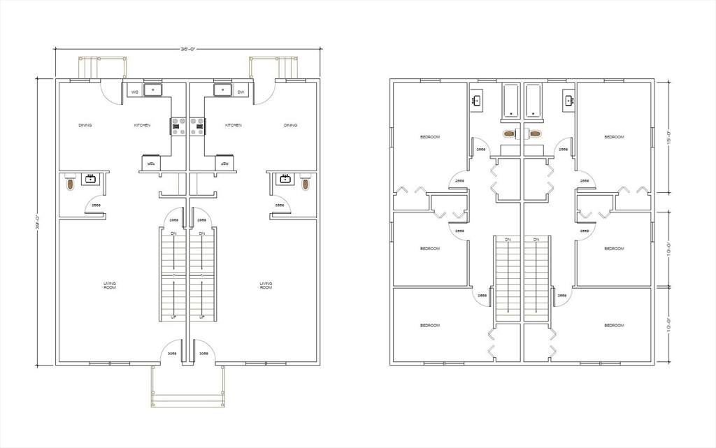
New construction development opportunity in the heart of New Bedford. Less than 2 miles from Downtown and the MBTA commuter rail. Zoned Residential B, this is 1 of 2 lots to be approved for single family or duplex. To be sold individually or as package. Offered with plans; permitting in progress. Seller credit offered towards water and sewer extension from adjacent lot.
School Ratings & Info
Description
New construction development opportunity in the heart of New Bedford. Less than 2 miles from Downtown and the MBTA commuter rail. Zoned Residential B, this is 1 of 2 lots to be approved for single family or duplex. To be sold individually or as package. Offered with plans; permitting in progress. Seller credit offered towards water and sewer extension from adjacent lot.
Related Properties
The property listing data and information set forth herein were provided to MLS Property Information Network, Inc. from third party sources, including sellers, lessors and public records, and were compiled by MLS Property Information Network, Inc. The property listing data and information are for the personal, non commercial use of consumers having a good faith interest in purchasing or leasing listed properties of the type displayed to them and may not be used for any purpose other than to identify prospective properties which such consumers may have a good faith interest in purchasing or leasing. MLS Property Information Network, Inc. and its subscribers disclaim any and all representations and warranties as to the accuracy of the property listing data and information set forth herein. Data last updated 2026-03-17T00:03:36.21.
